Холодильное оборудование • Холодильные витрины • Холодильные горки • Бонеты • Шкафы • Морозильные лари • Холодильные камеры • Моноблоки • Холодильные агрегаты • Охлаждаемые столы Стеллажное оборудование • Стеллажи торговые СК • Стеллажи для складских помещений • Опции для стеллажей Климатическое оборудование • Тепловое оборудование • Кондиционеры • Вентиляционное оборудование • Сплит системы • Мульти-сплит системы • Мультизональные системы • Воздушно-водяные системы Технологическое оборудование • Нейтральное оборудование • Конвекционные печи • Плиты электрические • Котлы пищеварочные, кипятильники • Хлебопекарное оборудование Торговое оборудование • Торговые витрины • Кассовые боксы • Хромированные ограждения • Тележки для обслуживания покупателей • Корзины • Шкафы сумочные • Овощные развалы • Торговые горки • Информационные стенды
   

Отправить заявку

Ф.И.О.*
Наименование организации
Телефон*
E-mail*
Сообщение*
Код на картинке* Код-антибот

Стеллажи серии СМ с передней стойкой

Стеллажное оборудование / Стеллажи металлические СМ

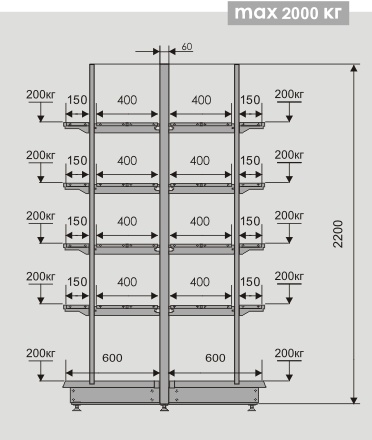
При нагружении стеллажей по другим вариантам загрузки (например, с большим количеством уровней полок), суммарная нагрузка на стеллаж не должна превышать указанные ниже значения.
Указанные допустимые нагрузки - статические, динамичные нагрузки (удары, толчки) как сбоку, так и сверху по траверсам, стойкам и полкам (в том числе и при установке груза) недопустимы. Груз на полке должен распределяться равномерно.

  • НАГРУЗКА НА ПОЛКУ - 200 КГ
  • ДЛИНА СЕКЦИЙ- 1000 ММ, 1250 ММ, 1330 ММ
  • ГЛУБИНА ПОДИУМА - 600 ММ, 700 ММ
  • ГЛУБИНА ПОЛОК 600 ММ, 700 ММ
ПроизводительРУСЬ
 

ООО "Холод-Сервис"
г.Уфа, Индустриальное шоссе, 3
тел. (347) 292-46-61, 292-46-62
e-mail: holod-sv@mail.ru
Руководитель интернет-проекта Дмитриев Дмитрий